Terreno La Tahona y aledaños, ref: 244819

Lote en venta en Cavas de la Tahona

Venta USD 215.000

850.000 m² SUP.
Año 2025Al FrenteEstado: En ConstruccionCalefacción: Sin Calefacción
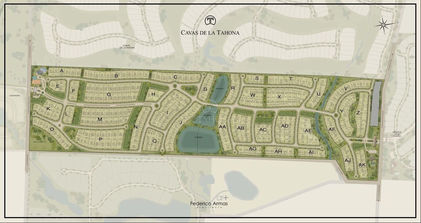
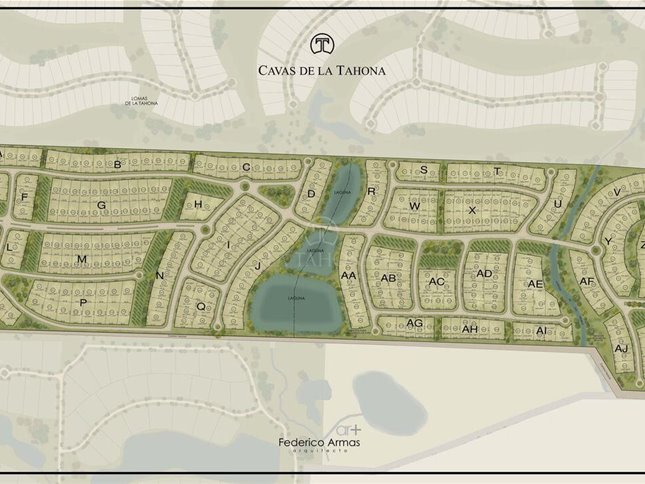
Lote en venta – Barrio Privado CAVAS | La Tahona

CAVAS es el más reciente y exclusivo desarrollo de la urbanizadora La Tahona, diseñado por el reconocido arquitecto Federico Armas. Un entorno único de viñedos, lagos y amplios espacios verdes, lindero al barrio Lomas de La Tahona y a su destacada cancha de golf.

Lote
• Superficie: 850 m²
• Orientación: Fondo Oeste
• Precio: USD 215.000
• Conexiones incluidas en el precio

El barrio se desarrolla sobre 63 hectáreas, con 333 lotes destinados a viviendas unifamiliares.

Gastos comunes: USD 10/m² (se abonan al finalizar la Etapa 2).
Inicio de obras: enero 2026.

Ideal para quienes buscan calidad de vida, naturaleza y excelente proyección de inversión.
* Las superficies de los apartamentos incluyen muros divisorios hasta su eje, ductos, terrazas, balcones, prorrateo de área común, circulación vertical exclusivamente de planta.

* Todas las medidas enunciadas son meramente orientativas, las medidas exactas serán las que se expresen en el respectivo título de propiedad de cada inmueble. Todas las fotos, imagenes y videos son meramente ilustrativos y no contractuales. Los precios enunciados son meramente orientativos y no contractuales.

Contacto