Apartamento La Blanqueada, ref: 242214

Apartamento de 1 dormitorio en venta

Venta USD 145.900

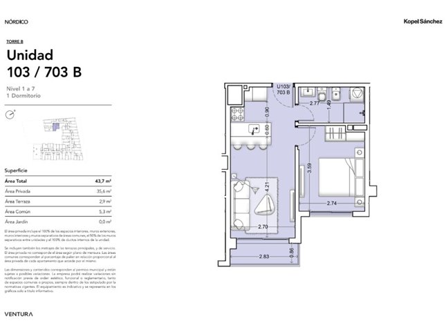
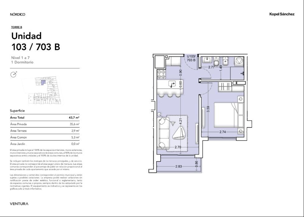
1 DORM1 BAÑO43 m² SUP.35 m² EDIF.1 Garaje
Garage1 PlantasParrilleroAño 2026Cocina comedorBarbacoaAl FrenteProp. HorizontalTerrazaPiso 5Estado: En ConstruccionCalefacción: otrasMascotasGimnasio
Nórdico – Ubicado en Luis Alberto de Herrera y Joanicó, en una esquina estratégica con excelente conectividad, cerca de universidades, hospitales, parques y servicios.

Complejo residencial de 209 apartamentos monoambientes, de 1 y 2 dormitorios, distribuidos en tres edificios con diseño moderno y enfoque sustentable.

Ofrece espacios comunes únicos: plazas con áreas de descanso y juegos, gimnasio interior y exterior, barbacoas equipadas, sala de juegos, zona fit, lavandería, lockers para e-commerce, y áreas pet y bike friendly.

Proyecto bajo la Ley de Vivienda Promovida, con beneficios fiscales:
-Exoneración de ITP, IRPF/IRAE e IP por 10 años.

-Garajes disponibles desde USD 22.500.
-Gastos de ocupación: 4%.
-Entrega Estimada Torre B: Julio 2026.

Una propuesta moderna y completa para vivir o invertir. ¡Consultá hoy!
* Las superficies de los apartamentos incluyen muros divisorios hasta su eje, ductos, terrazas, balcones, prorrateo de área común, circulación vertical exclusivamente de planta.

* Todas las medidas enunciadas son meramente orientativas, las medidas exactas serán las que se expresen en el respectivo título de propiedad de cada inmueble. Todas las fotos, imagenes y videos son meramente ilustrativos y no contractuales. Los precios enunciados son meramente orientativos y no contractuales.

Contacto